Готовая мини-АЗС G-10000: автономная заправка для вашего бизнеса
- Мини-АЗС G-10000 — это готовое решение для хранения и автоматизированной выдачи дизельного топлива на вашем объекте. Она идеально подходит для предприятий, которые ценят мобильность, экономичность и безопасность. Ёмкость объёмом 10 000 литров изготовлена из высококачественного линейного полиэтилена низкой плотности (LLDPE) методом ротационного формования (ротоформование), что обеспечивает исключительную прочность, химическую стойкость и долговечность.
Технология производства и материалы
- Ротоформование: бесшовная технология производства, которая гарантирует равномерную толщину стенок (6-10 мм), отсутствие швов и уязвимых мест. Это исключает риск утечек и увеличивает срок службы.
- Материал LLDPE: Линейный полиэтилен низкой плотности обладает высокой устойчивостью к химическим воздействиям (включая дизельное топливо, масла, кислоты и щелочи), ударостоек, не подвержен коррозии и сохраняет эластичность даже при низких температурах (до -20°C)56. Он также экологичен и не выделяет вредных веществ.
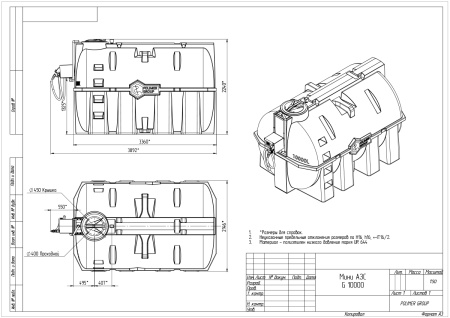
Ключевые характеристики
- Объем: 10 000 литров.
- Габариты: 3700×2100×1855 мм (горизонтальная ориентация).
- Электропитание: 220 В.
- Производительность насоса: До 56-60 л/мин.
- Комплектация: Включает заправочный модуль (например, PIUSI CUBE 56/33М или JYB60), механический или электронный уровнемер, фильтр грубой очистки, обратный клапан, раздаточный пистолет с автоматическим отсекателем и шланг длиной до 4 м.
- Дополнительно: Возможна комплектация системами автоматизации (учёт по картам, GSM-мониторинг, датчики уровня и температуры).
Области применения
Мини-АЗС G-10000 идеальна для:
Преимущества и выгоды
- Экономическая эффективность: Снижение затрат на топливо за счёт оптовых закупок и исключения наценок стационарных АЗС. Экономия времени и денег на логистике (топливо всегда под рукой).
- Мобильность и автономность: Не требует капитального строительства или сложного монтажа. Установите на любой ровной площадке и подключите к сети 220 В. Возможность быстрого перемещения между объектами.
- Безопасность и надёжность: Ёмкость из LLDPE не ржавеет, химически инертна и соответствует требованиям для хранения жидкостей 3 класса опасности. Оборудована дыхательным клапаном и системой аварийного сброса давления. Сертифицирована для хранения дизельного топлива.
- Автоматизация и контроль: Опциональные системы учёта (смарт-карты, PIN-коды) предотвращают несанкционированный доступ и упрощают ведение бухгалтерии. Возможность дистанционного мониторинга уровня топлива и операций через GSM или облачный сервис.
- Долговечность и экологичность: Бесшовная конструкция и стойкость материала LLDPE гарантируют срок службы не менее 10-15 лет. Полная герметичность предотвращает испарения и загрязнение окружающей среды.
Сравнение с аналогами
На рынке представлены различные конфигурации мини-АЗС (контейнерные, на шасси, разного объёма). Модель G-10000 выделяется оптимальным соотношением цены и качества. Она долговечнее и химически устойчивее стальных аналогов, которые подвержены коррозии. При этом её стоимость конкурентов по сравнению с импортными решениями.Мини-АЗС G-10000 — это не просто ёмкость, а готовый, автономный заправочный комплекс для вашего бизнеса. Она создана по передовой технологии ротоформования из лучших материалов, чтобы обеспечить ваше предприятие топливом там и тогда, где это необходимо, с максимальной экономией и безопасностью.
Это решение для тех, кто ценит надёжность, эффективность и современный подход к организации логистики топлива.
Хотите узнать больше или подобрать конфигурацию под ваши задачи? Свяжитесь с нашими экспертами!
Для покупки товара выберите понравившийся товар и добавьте его в корзину.
Далее перейдите в Корзину и нажмите на «Оформить заказ» или «Быстрый заказ».
Оформляя «Быстрый заказ», заполните данные ФИО, телефон и e-mail. При необходимости добавьте особые условия в поле «Комментарий к заказу». Отправьте заявку нажав на кнопку «ОТПРАВИТЬ». Вам перезвонит менеджер и уточнит условия заказа.
Для оформления заказа в стандартном режиме («Оформить заказ») заполните форму полностью по последовательным этапам: адрес, способ доставки, оплаты, данные о себе.
Советуем в комментарии к заказу написать информацию об адресе доставки. Нажмите кнопку «Оформить заказ».
Доступны следующие варианта оплаты:
- Оплата банковской картой
- при самовывозе на складе или в офисе в г. Мытищи, г. С.-Петербург. Пожалуйста убедитесь заранее о наличии интересующего Вас товара на складе. - Наличными
- только в офисах в г. Мытищи, г. С.-Петербург. Вы оплачиваете сумму за товар в рублях. Затем получаете товар на складе, либо ожидаете доставку. - Безналичный расчет
- в любом из представленных на сайте городов для юридических и физических лиц доступно выставление счета по электронной почте. - Оплата по QR коду для физических лиц
- по телефону или по электронной почте с покупателем согласовываются все вопросы по списку выбранных товаров, по доставке, либо самовывозу. На указанную покупателем электронную почту сотрудник компании присылает счет с QR кодом. Покупатель оплачивает товар в своем банке используя присланный QR код. Подробная инструкция по ссылке.
Доступны следующие варианты доставки:
- Самовывоз со склада.
После получения оплаты за товар сотрудник компании свяжется с Вами и сообщит информацию о дате и адресе склада отгрузки. Пожалуйста заранее уточните габариты товара, чтобы Вы смогли разместить купленный товар в Вашем автомобиле. - Доставка транспортом компании (Москва и область).
После получения оплаты за товар сотрудник компании свяжется с Вами и сообщит информацию о дате доставки. Пожалуйста сообщите дополнительный телефон для связи на случай, если Ваш телефон будет не доступен. - Доставка по России транспортными компаниями.
Для предварительной оценки стоимости доставки в регионы Вы можете воспользоваться калькулятором доставки.
Либо позвоните нам и стоимость доставки по России для Вас рассчитает сотрудник нашей компании. Бесплатный звонок по России 8 (800) 500-78-35. Также Вы можете выбрать транспортную компанию, которой доверяете, а мы рассчитаем стоимость «от двери до двери» или «от склада до склада».
